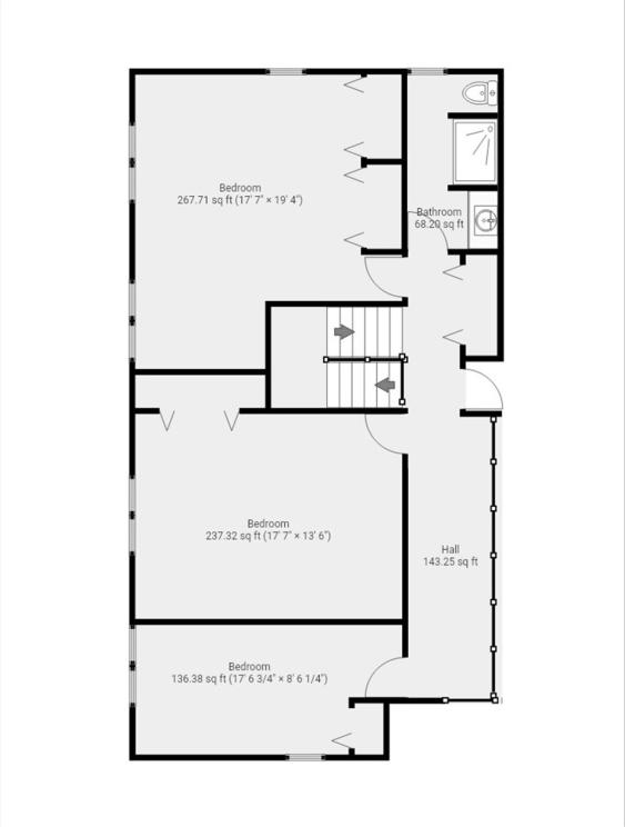
What an AMAZING opportunity! This unique 4BR, 2 ½ bath home is just waiting to be loved by its new owner. Situated on a 1.3 acre corner lot just seconds away from Main Street and Blacksburg Municipal Golf Course. The Blacksburg real estate market continues to be strong, and while this property will make a fine home, it is also simultaneously a wonderful investment. Location, location, location. A rare opportunity indeed.
NOTE: THE HIGHEST ONLINE BID IS NOT THE WINNING BIDDER. THIS AUCTION IS BEING CONDUCTED WITH A RESERVE AND THE SELLER HAS THE RIGHT TO ACCEPT OR REJECT THE HIGHEST BID. THE HIGHEST ONLINE BID WILL BE PRESENTED AT THE LIVE AUCTION ON AUGUST 23. BIDS WILL BE ACCEPTED ONLINE UNTIL 1:00 PM ON AUGUST 21.

















































